
Örök Érték Virányos Szívében!
Mandala Residence – ahol a harmónia otthonra talál.
1125 Budapest, Szarvas Gábor út 24.
A Mandala Residence exkluzív, 6 lakásos prémium fejlesztése a budai zöldövezet és a városi kényelem tökéletes találkozása.
Elegáns, időtálló dizájn, mennyezethűtés-fűtés, okosotthon-technológia és luxus anyaghasználat biztosítja a páratlan életminőséget.
A lenyűgöző panoráma és a gondosan megtervezett belső terek tökéletes harmóniát teremtenek – hogy Ön minden nap otthon érezhesse magát.
Idilli zöld környezet, városi kényelemmel
A Mandala Residence a XII. kerület Virányos részén, a Szarvas Gábor úton valósul meg – egyedülállóan csendes, mégis kiválóan megközelíthető lokációban.
A gyönyörű zöldövezeti elhelyezkedés nyugalmat és természetközelséget kínál, miközben a belváros és a főbb közlekedési csomópontok pár perc alatt elérhetők.
A környéken számos szolgáltatás, nemzetközi iskola, óvoda, sportlétesítmény és bevásárlási lehetőség található gyalogos távolságban, hogy mindennapjai még kényelmesebbek legyenek.
Gyönyörű panoráma és igényes belső kert
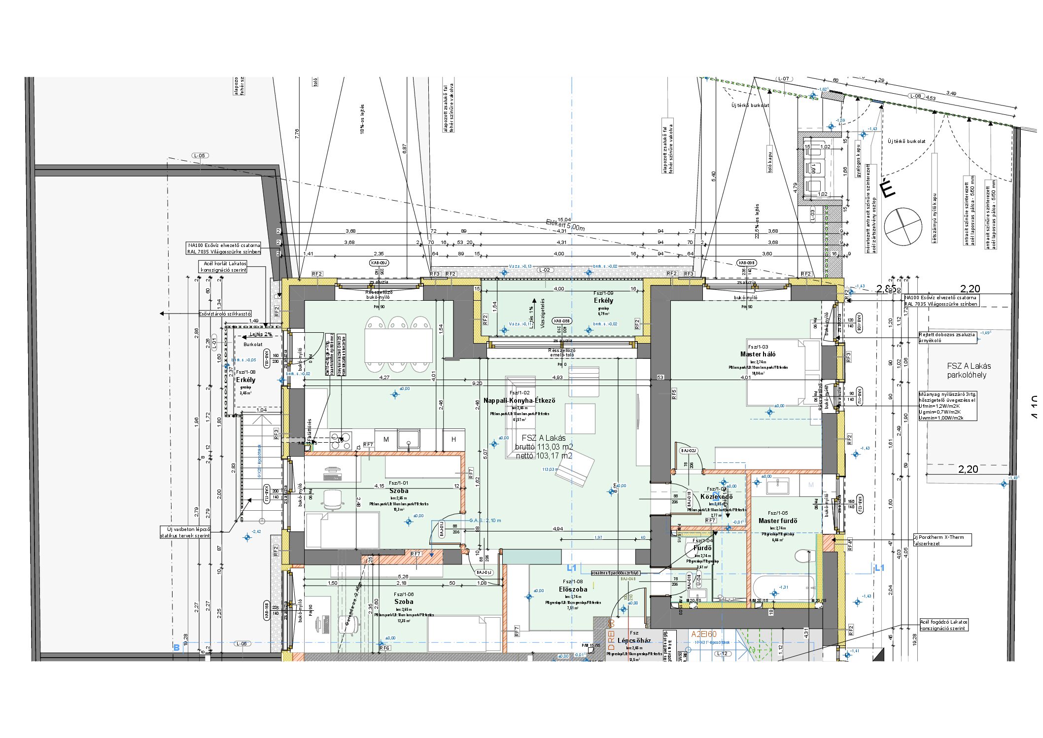
Az épület két főhomlokzata lenyűgöző kilátást nyújt a Pasaréti Dombra, valamint a hátsó, saját belső kertre, amely privát, zöld pihenőzónát biztosít a lakók számára.
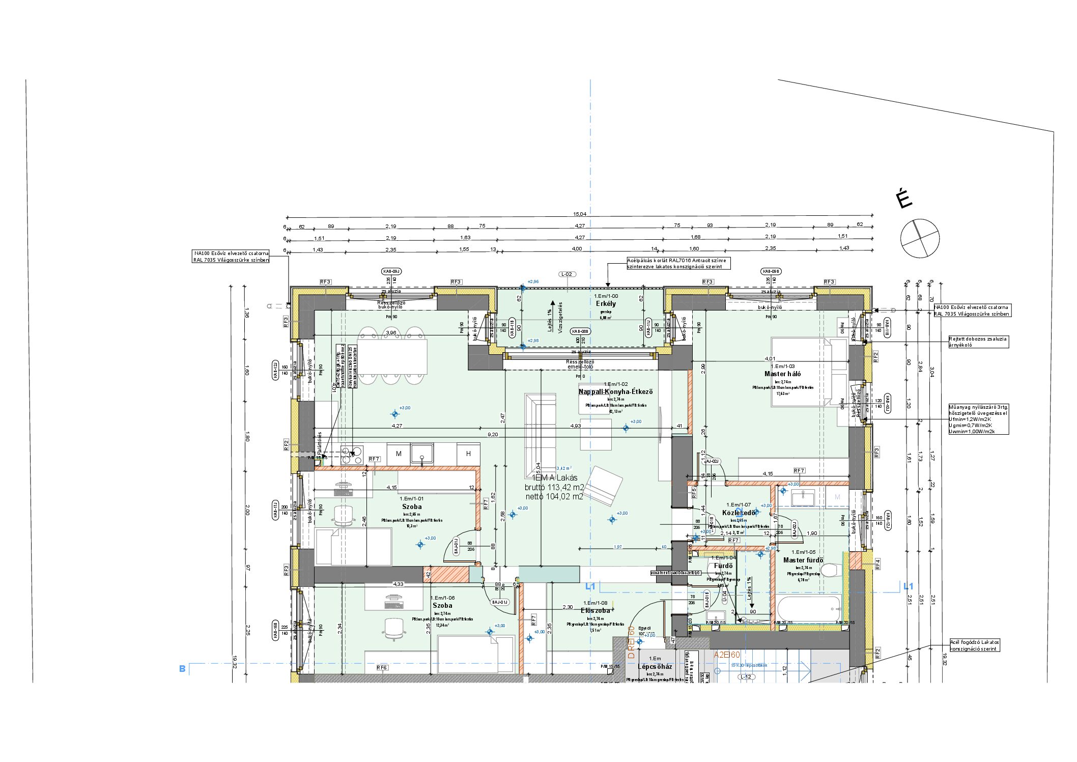
A belső terek tágasak, világosak, átgondolt térkapcsolatokkal és természetes anyaghasználattal – minden részlet a nyugalmat és az eleganciát szolgálja.
Kifinomult design és azonnali betekintés
A Mandala Residence egy meglévő épület teljes átalakításával valósul meg, amelynek során egyedi, modern otthonok születnek.
A lakások már az építkezés korai szakaszától megtekinthetők, így az érdeklődők már most betekintést nyerhetnek a jövőbeli otthonuk világába.
Kifinomult terek – személyre szabott luxus
A lakások egytől egyig egyedi karakterűek:
(A Tetőtér B – 76 m² – már foglalva.)
Magas műszaki tartalom, prémium kivitelezés
Akárcsak a Padma Residence esetében, itt is kiemelt figyelmet kap a minőség és a részletesség:
Minden anyag, minden részlet a hosszú távú értéket szolgálja.
Befektetés, ami időtálló
A Mandala Residence nem csupán lakóhely, hanem örök érték a budai hegyvidék szívében.
Kis közösség, csendes környezet, kimagasló műszaki tartalom és értékálló lokáció – ezek garantálják, hogy ez a fejlesztés nemcsak otthon, hanem biztos befektetés is legyen.
Átadás: 2026 III. negyedév